Winnipeg

Slab

3 bedrooms | 2 bathrooms

Approx 1,400 Sq Ft

Ellingsworth Commons:

Starting at $290,900

Knob Hill:

Starting at $290,900

Waters of Millan:

Starting at $290,900

Basement

4 bedrooms | 3 bathrooms

Approx 2,100 Sq Ft

Ellingsworth Commons:

Starting at $373,900

Knob Hill:

Starting at $373,900

Waters of Millan:

Starting at $364,900

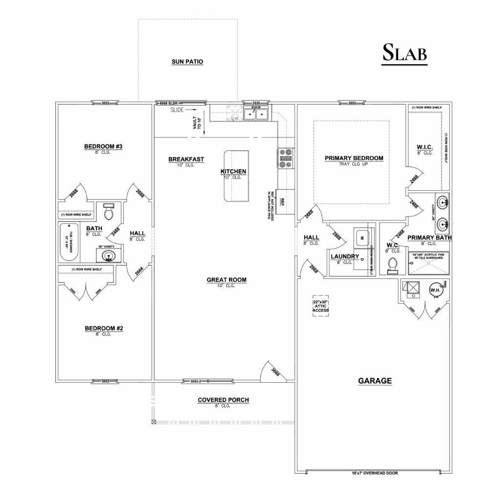
The Winnipeg

This 3 Bed/2 Bath home features a large covered front porch, spacious great room with 10′ ceiling, open floor plan, and split bedrooms. The eat-in kitchen offers vaulted ceilings, stainless steel appliances, quartz countertops, and roomy breakfast nook. Primary suite offers an elegant trey ceiling, spacious walk-in closet, and en-suite bath with double vanity, water closet, and large walk-in shower.

The Winnipeg offers a basement option.

*Floor plans and exterior details subject to change. Our online floor plans and renderings are only intended to give a general indication of the proposed layout and amenities.*

*Floor Plans are subject to change, pictures are intended to give a general indication of the proposed layout. Some upgrades may be shown.

Communities with this floorplan

Ellingsworth Commons

Jeffersonville, IN
New Homes Starting in the $260's

Knob Hill

Georgetown, IN
New Homes Starting in the $260’s

Waters of Millan / Plains of Millan

Sellersburg, IN
New Homes Starting in the $280’s

Contact

  • This field is for validation purposes and should be left unchanged.